Showing 1 of 9
Webster University Art Gallery — St. Louis, Missouri

CASE STUDY:
Webster University Art Gallery — St. Louis, Missouri

Project Overview

Located at the heart of Webster University in St. Louis, Missouri, the Webster University Art Gallery serves as a refined environment for artistic exploration and academic engagement. Designed by V Three Studios, the gallery’s architectural vision emphasizes clarity, balance, and transparency—values that align perfectly with The PK-30 Experience.

To achieve this vision, PK-30 was selected to engineer and manufacture a custom sliding glass door system that seamlessly connects Corridor 249 to Gallery 247, creating a visually open yet acoustically discreet transition between spaces.

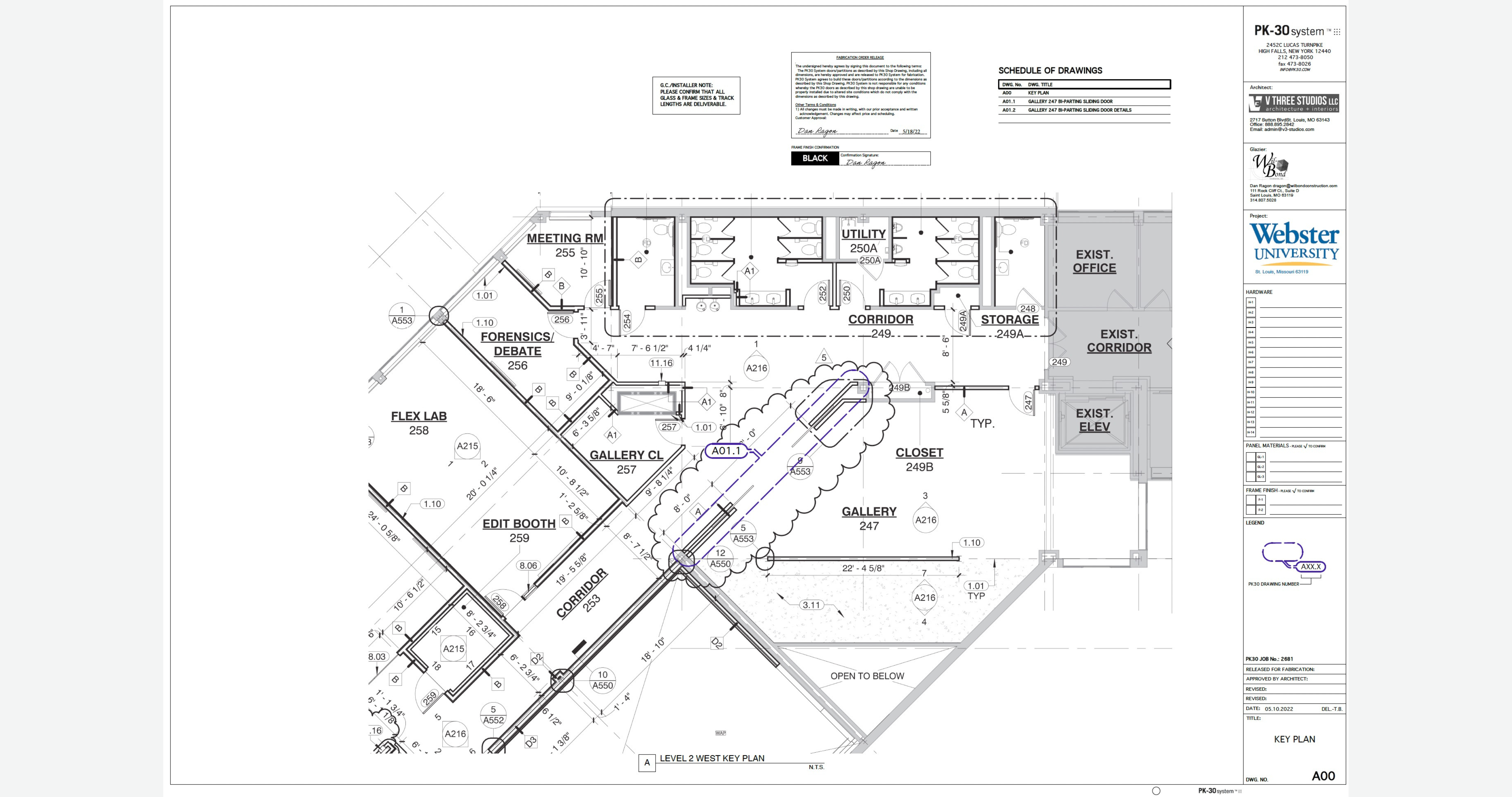
Challenge

The design intent called for a symmetrical, minimalist glass entry system that would enhance the gallery’s modern aesthetic while maintaining full functionality and durability. The architecture demanded a fully glazed bi-parting sliding door with no intermediate mullions, ensuring an uninterrupted visual flow between the corridor and exhibition space.

In addition to these aesthetic requirements, the project required custom sizing and detailing—including custom-width door panels and tailored pull bars—to integrate perfectly with the existing architectural proportions. The challenge lay in engineering a precisely balanced, large-scale sliding system that would deliver both structural integrity and visual refinement.

Solution

Collaborating closely with V Three Studios, the PK30 technical team engineered a fully manufactured sliding glass door system using PK30 System extrusions, designed for 3/8” clear tempered low-iron glass panels. The system consists of:

  • (1) elevation measuring approximately 156” wide x 106” high
  • (1) pair of bi-parting sliding pocket doors, each 78” wide x 106” high
  • Class 1 black anodized finish, complementing the gallery’s refined material palette
  • No intermediate vertical mullions, creating a continuous full-glass aesthetic
  • Custom-sized pull bars, fabricated to match the architect’s exact specifications

Each door glides effortlessly into recessed wall pockets, achieving a high level of symmetry while maintaining the architectural integrity of the surrounding corridor and gallery space.

This system reflects PK30’s core principle: precision-engineered design that elevates spatial experience through simplicity and performance.

Results

The result is a modern, refined, and transparent threshold that embodies the spirit of the Webster University Art Gallery. The doors achieve visual continuity, balance, and quiet functionality, aligning perfectly with the architect’s design intent.

The seamless integration of PK30’s extrusions, finishes, and glass components demonstrates the versatility and craftsmanship that define The PK30 Experience—a commitment to collaboration, customization, and consistency in design excellence.

 Conclusion — The PK-30 Experience

The Webster University Art Gallery project exemplifies the strength of The PK30 Experience—where collaboration, precision, and craftsmanship converge to deliver architectural solutions of lasting value.

PK30’s ability to assist the design team, customize our product, and deliver a solution that integrates seamlessly into the architecture contributed to the successful realization of this project. Our commitment to quality, performance, and aesthetic harmony not only met but exceeded expectations, reflecting both the architectural integrity of V Three Studios and the creative essence of Webster University’s art community.

Location
St. Louis, Missouri

Architect
V Three Studios

Photography
V Three Studios

PK-30 Scope of Work
PK-30 Sliding Glass Door System
Finish: Class 1 Black Anodized
Glass Type: 3/8” Clear Tempered Low-Iron Glass. Total Linear Feet of Panels: 13 Linear Feet.


MORE CASE STUDIES