Showing 1 of 12
Swedish Covenant Hospital | Mayora Rosenberg Women’s Health Center - Chicago, IL

CASE STUDY:
Swedish Covenant Hospital | Mayora Rosenberg Women’s Health Center – Chicago, IL

 

Project Overview

Swedish Covenant Hospital partnered with Anderson Mikos Architects to transform the fourth floor of its Galter Medical Pavilion into the Mayora Rosenberg Women’s Health Center—a comprehensive facility dedicated to women’s wellness. The renovation emphasizes transparency, accessibility, and dignity in care, reflecting the hospital’s mission to create an environment of compassion and inclusivity for patients of all backgrounds.

PK-30 System was engaged to engineer, fabricate, and deliver architectural wall systems that define the center’s serene, modern interior. The scope included fully assembled fixed panels, sliding doors, and swing doors, each contributing to an environment of clean lines and visual openness. The system was finished in a custom white color, complementing the center’s soft palette and reinforcing a sense of calm, cleanliness, and precision.

Challenge

The design team sought to achieve a space that felt boutique-calm yet clinically advanced. Anderson Mikos envisioned “a relaxing, soothing, boutique-like experience” for patients representing a wide range of cultural and linguistic backgrounds.

To bring this vision to life, the architecture required curved glass panels that defined the main waiting area and expansive transparent partitions that balanced openness with privacy. PK-30 faced the challenge of maintaining exact tolerances for field conditions while meeting healthcare standards for durability and infection control. The project also called for custom-printed glass to identify patient rooms with imagery appropriate for a hospital setting—combining aesthetic warmth with functionality.

As the renovation occurred in phased construction within an active hospital, close coordination was essential to ensure minimal disruption and flawless sequencing alongside ongoing clinical operations.

Solution

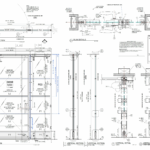
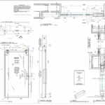
PK-30 provided a fully integrated system totaling 181.7 linear feet, including:

  • 9 fixed frames
  • 29transom panels, with widths ranging from ±40” curved to ±49.6”.
  • 3 swing doors (±48”W × ±108”H)
  • 9 sliding doors (±42”W × ±84”H), designed for 3/8” and 1/4” glass.

To align with the architect’s refined geometry, PK30 customized extrusions, mullion layouts, kick bases, and curved assemblies to preserve uninterrupted sightlines and daylight. Custom-mounted pull bars were bonded directly to the glass and integrated with mortise locks to provide both functionality and a distinctive architectural feature.

The modular system allowed seamless integration of fixed and operable elements, ensuring a unified appearance across corridors, consultation rooms, and imaging suites.

Results
  • Visual continuity: Curved configurations and glass expanses created openness and spatial harmony.
  • Precision installation: Pre-assembled units accelerated installation with minimal disruption.
  • Architectural integrity: Collaboration with Anderson Mikos enabled perfect alignment of mullions, locks, and hardware detailing.
  • Custom finish: The white color palette enhanced brightness, warmth, and a sense of well-being.
  • PK-30 Experience: Complete design support, fabrication accuracy, and project coordination delivered a seamless result.
 Conclusion — The PK-30 Experience

The Mayora Rosenberg Women’s Health Center exemplifies how PK-30 elevates healthcare interiors through craftsmanship, customization, and collaboration. Integrating curved glass, printed imagery, custom pull bars, and precision-engineered hardware, PK30 helped realize a space that communicates transparency, care, and dignity.

This project stands as a model of PK-30’s ability to translate architectural intent into high-performance solutions—where aesthetic refinement meets technical excellence in service of human experience.

Location
Chicago, IL

Architect
Anderson Mikos Architects Ltd.

Photography
Kyle Wolff

PK-30 Scope of Work
PK-30 provided a fully integrated system totaling 181.7 linear feet, including: • 9 fixed frames • 29 transom panels, with widths ranging from ±40” curved to ±49.6” • 3 swing doors (±48”W × ±108”H) • 9 sliding doors (±42”W × ±84”H), designed for 3/8” and 1/4” glass.


MORE CASE STUDIES