Showing 1 of 15
CALS Main Library — Little Rock, Arkansas

CASE STUDY:
CALS Main Library — Little Rock, Arkansas

Project Overview

Creating a Future-Ready Library Through Flexibility, Openness & Community

The CALS Main Library renovation, led by Polk Stanley Wilcox Architects, re-imagines one of Arkansas’ most beloved civic institutions as a forward-thinking destination for learning, connection, and community life. Focused on adaptability, transparency, and public engagement, the transformation celebrates the library as a welcoming hub for all ages—featuring dynamic spaces such as production studios, teaching kitchens, expanded youth areas, and a new café that seamlessly integrates with the main lobby.

At the heart of this effort was the desire to create spaces that can evolve over time. Drawing on lessons from COVID—when cafés and auxiliary areas in cultural buildings often sat unused—the design team sought an architectural solution that would allow the café to fully merge with the library when needed, expanding program versatility while maintaining aesthetic clarity and openness. PK-30 System delivered the flexible, elegant partition solution that made this vision possible.

Challenge

The architect’s vision centered on a flexible, resilient public space: a light-filled lobby and café that could operate independently or open fully to the main library to support future programming needs. The solution needed to:

  • Maintain visual transparency and aesthetic refinement
  • Eliminate physical and visual barriers
  • Deliver future-proof flexibility without compromising architectural intent
  • Operate without a floor track, preserving a seamless circulation path
  • Provide a clean, modern, monolithic glass aesthetic
  • Allow the entire wall to fold away easily to create one unified space

To achieve this, the PK-30 team collaborated closely with the architect to engineer a folding glass wall system that would respond to evolving community needs—helping the library adapt with grace and purpose.

Solution

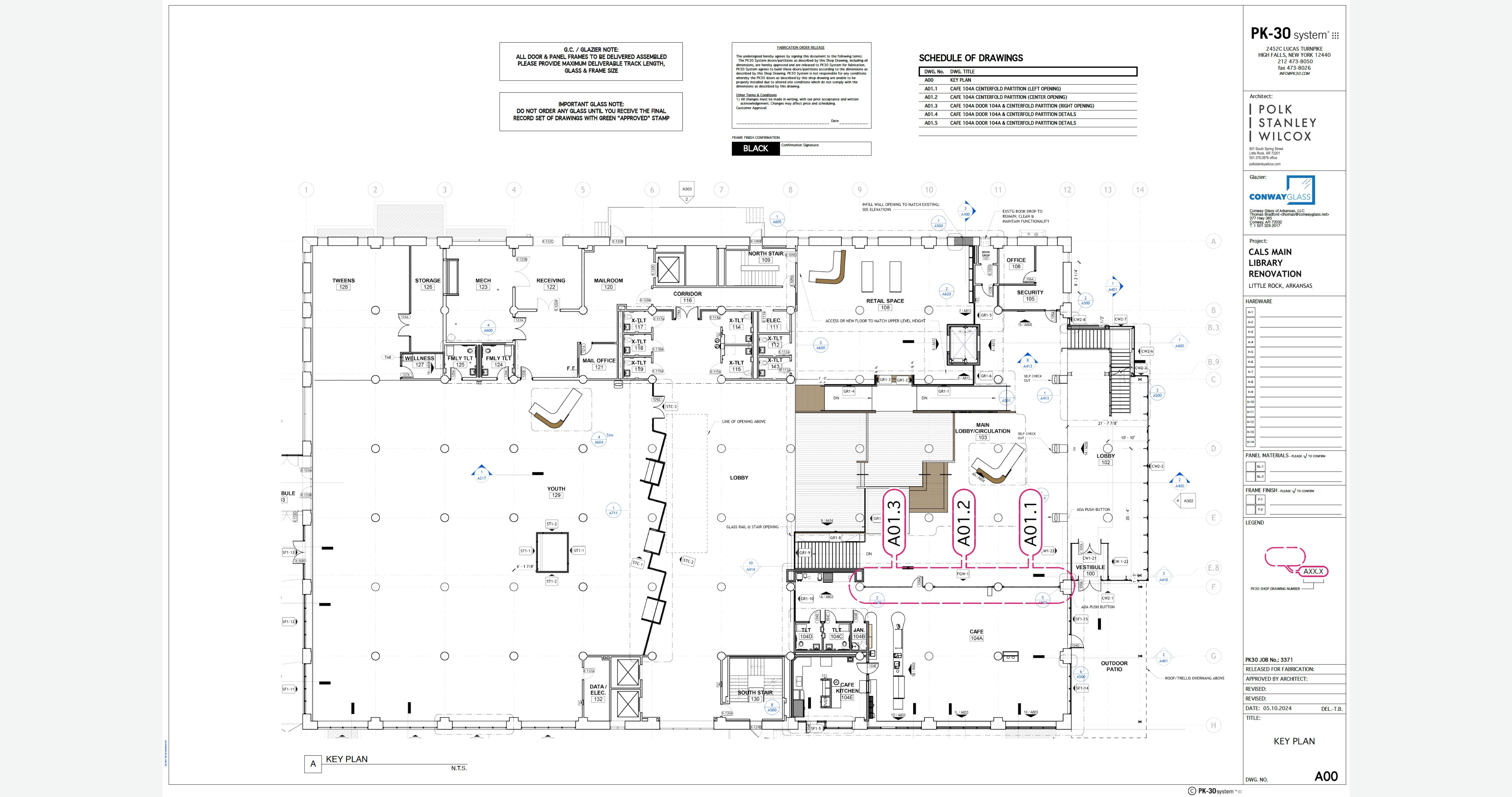
PK-30 supplied 48.2 linear feet of folding glass wall systems and one swing door to seamlessly connect the Lobby and Café.

The installation included three openings, each featuring:

  • (6) PK-30 Centerfold panels per opening
  • (5) full-width panels + (1) half-width panel
  • No mullions, providing uninterrupted transparency
  • Track-free floor transitions to maintain circulation and accessibility

Elevations:

  • Approx. 186″ W x 108″ H
  • Approx. 196″ W x 108″ H
  • Approx. 196.25″ W x 108″ H

Additionally, a single swing door completes the functional glazing assembly, offering ADA-compliant everyday access.

The result is a refined, minimalist system that folds smoothly and completely out of the way, enabling the café and library to become one shared environment when desired—an ideal solution for community programming, events, and operational flexibility.

Results

The PK-30 System provided CALS with:

  • Seamless Transparency: no mullions or floor tracks, preserving openness and visual continuity
  • Future-Ready Flexibility: compact folding panels allow the café to open entirely to the library when needed
  • Effortless Operation & Clean Detailing: intuitive use and clean lines enhance the interior architecture
  • Minimal Visual Impact: refined aluminum frames and clear glass blend into the design
  • Architectural Performance: durability and precision consistent with heavy public use

More than a partition, the system acts as an architectural tool for adaptability—allowing CALS to expand, reorganize, and evolve programming in response to changing community needs.

 Conclusion — The PK-30 Experience

The CALS Main Library renovation reflects the values of openness, community engagement, and adaptability. PK30’s folding glass system supported these goals by delivering a solution that is high-performance, visually quiet, and dramatically flexible—allowing the library to transform effortlessly between intimate and expansive spatial modes.

The PK30 Experience ensured seamless collaboration from design through installation, offering the architect a customizable solution that aligned with both aesthetic and operational objectives.

Location
Little Rock, AR

Architect
Polk Stanley Wilcox

PK-30 Scope of Work
PK30 supplied 48.2 linear feet of folding glass wall systems and one swing door to seamlessly connect the Lobby and Café.


MORE CASE STUDIES